¡Espectacular! Así será el cine Katiuska de Almería tras su remodelación

urbanismo

Aprueban la licitiación del proyecto de rehabilitación del antiguo cine Katiuska para su puesta en valor como espacio cultural

Un chequeo al antiguo cine Katiuska de Almería determinará su rehabilitación

Estado actual del antiguo cine Katiuska.
Estado actual del antiguo cine Katiuska. / DDA
Redacción

14 de agosto 2023 - 16:40

El Ayuntamiento de Almería ha aprobado, en Junta de Gobierno Local, la licitación de las obras del proyecto de ejecución del Centro Audiovisual Antiguo Cine Katiuska, ubicado en la calle General Luque, con un presupuesto de 1.414.389,92 euros y un plazo de ejecución de nueve meses. La propuesta incluye además la aprobación de los liegos de cláusulas administrativas y técnicas que rigen la adjudicación de este contrato.

Esta actuación, incluida como parte del proyecto CAMINA, pondrá en valor este edificio, situado en pleno Casco Histórico, rehabilitado y convertido en un centro cultural y dinamizador de la zona”, ha explicado la concejala de Obras Públicas, Mantenimiento, Accesibilidad y Economía Azul, Sacramento Sánchez.

Mapa del diseño
Mapa del diseño

La edil popular ha recordado que este proyecto está llamado a ser un “referente cultural” en la ciudad, con un proyecto que concibe un inmueble “moderno, versátil y funcional que acogerá en su interior todo tipo de actividades culturales”.

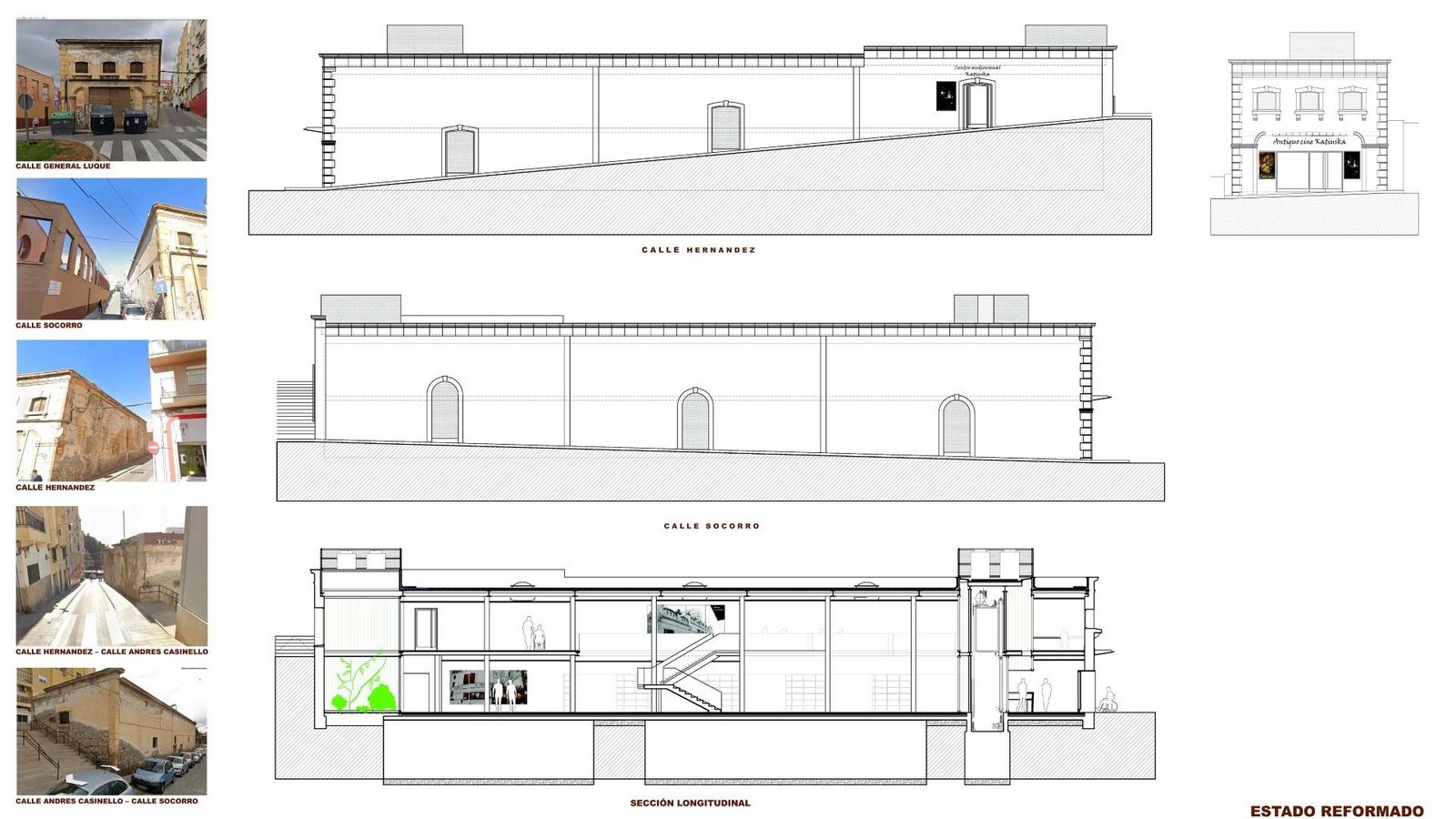
El edificio, de 1904 y obra del arquitecto Trinidad Cuartara, concebido originalmente como almacén de uva y poco antes de la Guerra Civil reformado como sala de cine, será ahora rehabilitado manteniendo su concepción y carácter a nivel exterior, rememorando su consideración histórica, y se remodelará completamente en su interior para adecuarlo a los nuevos usos previstos.

Aprobada la licitación el siguiente paso será al publicación de su anuncio en el perfil del contratante del Ayuntamiento de Almería, señalándose un plazo para la presentación de proposiciones de veintiséis días, contados a partir del día siguiente de su publicación en el perfil del contratante.

Katiuska, el proyecto

De dos plantas, una vez rehabilitado, el edificio tendrá un acceso principal, al primer nivel, desde la calle General Luque y un segundo acceso, desde la calle Hernández, que comunicará con la entreplanta. Ambas plantas se comunican interiormente mediante una escalera y un ascensor. La superficie total construida del edificio es de 604,86 m2.

Los trabajos de rehabilitación se centrarán fundamentalmente sobre la envolvente y fachada del edificio reconstruyendo revestimientos, elementos de piedra, molduras de ventana y cornisas, incluyendo además la reparación estructural de los muros de carga. La actuación a nivel técnico sobre el edificio afecta también a nivel de estructura, recuperándose para los nuevas necesidades de uso que tendrá el inmueble las viguetas que conforman el forjado primitivo.

Gran espacio central

En el interior se proyecta la ejecución de dos núcleos verticales, cercanos a las fachadas cortas respectivamente, que introduzcan iluminación natural en el edificio. Al fondo, adyacente a la fachada norte, se proyecta un patio ajardinado, en torno al que se dispondrán los espacios más fragmentados del programa de necesidades del edificio: aseos y áreas de talleres y exposiciones.

Próximo a la entrada principal, en la fachada sur, se dispone un hito (vidrio u-glass) que contendrá el ascensor y la recepción, y que busca la entrada de luz difusa desde la cubierta a esta parte del edificio y que ejercerá de “faro-guía” como parte del edificio. También respecto al interior, se conforma una entreplanta que ocupa todo el ancho del edificio en sus extremos, en torno a los núcleos verticales de iluminación, y que se unen mediante una zona de “palcos”, abierta sobre el “patio de butacas” del edificio. El tratamiento interior pretendido es simple, de forma que permita que la atención del usuario se mantenga sobre las actividades que se produzcan en el edificio.

Distribución de usos

Respecto de los futuros usos del edificio, el concepto de diseño de las plantas viene condicionado por las comunicaciones interiores que inducen tanto una escalera, de dos tramos paralelos, situada en el centro de la planta, como de la presencia de un ascensor, de doble embarque a 180º, dispuesto en el interior del hito traslucido próximo a la entrada principal.

Planta baja

La entrada principal al edificio se realiza por su fachada sur, que contiene un elemento cilíndrico traslucido en cuyo interior se sitúa el ascensor, la recepción y cuartos de informática y archivo. Albergará la zona principal de talleres, dispuesta en doble altura, junto con el archivo multimedia situado bajo la pasarela de la entreplanta, paralela a la fachada de la calle Hernández. Adyacente a este “patio de butacas”, hacia el norte, y bajo la entreplanta, se dispone un área destinada a exposiciones temporales, el núcleo de aseos, y el patio ajardinado que atraviesa verticalmente todo el edificio, hasta la cubierta.

Entreplanta

A partir del acceso exterior a esta planta, desde la calle Hernández, se configura una zona multifuncional que, mediante el empleo de tabiques móviles, permite su uso como zona de exposiciones o salas multiusos, de forma independiente al resto del edificio. Esta área se ilumina de forma natural con el patio ajardinado.

Sobre el archivo multimedia, se construye una pasarela que alberga la zona de trabajo multimedia, y que se abre sobre la zona de talleres de planta baja. En esta pasarela se sitúan la escalera y el ascensor de comunicación vertical entre ambas plantas.

Cubierta

Se proyecta la construcción de una cubierta ligera, tipo ‘Deck’, en la que se situarán dos zonas de maquinaria de climatización, adyacentes a las entradas de iluminación natural al edificio: Patio ajardinado y núcleo de ascensor. El acceso a la cubierta es de tipo restringido, exclusivo para mantenimiento, y se produce a través de la losa de cubierta del ascensor.

CAMINA es una iniciativa apoyada por la Unión Europea que busca construir una narrativa cultural de la ciudad, conectando agentes culturales, sociales y vecinales con promotores culturales (socios del proyecto) para la creación de proyectos culturales, que deben poner en valor la diversidad cultural y el patrimonio almeriense y permitirán definir un eje cultural en torno a tres barrios de la ciudad, el Casco Histórico-Almedina, Centro Ciudad y la Chanca-Pescadería. Para ello, tres espacios concentrarán la actividad cultural de CAMINA y conectarán los tres barrios de la ciudad a través de actividades culturales en el Mesón Gitano, el Museo Doña Pakyta y el antiguo Cine Katiuska.

stats